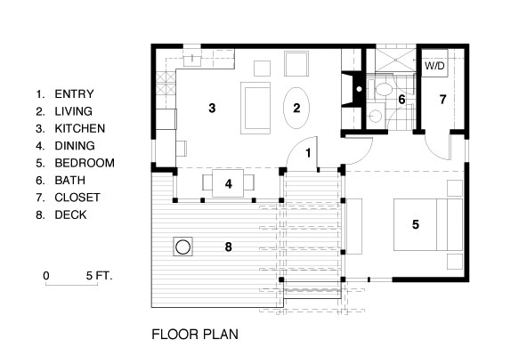
Floor plan showing the compact and clever design.  Open floor plan in living area.